概 述
|
|
特 点 |
1.全金属结构,坚固稳定。
2.短行程、小型结构设计。
3.低压力损失设计。
4.新型磁耦合结构设计确保传输信号更加稳定。
5.根据用户要求可以加装磁过滤器。
6.可带保温或伴热夹套。
7.用于各行业的气体和液体测量,测量部分可采用不同的材质来适应不同的介质条件。
8.适合于恶劣环境和腐蚀严重的介质, 具有良好的抗热性和耐压性。
9.智能型双行液晶显示,可选现场瞬 时/累计流量显示,可带背光。
10.可选二线制、电池、交流供电方式。
11.带有数据恢复、数据备份及掉电 保护功能。 |

|
|
M7、M9指示器 |
◆ M7指示器 A、就地指示器,通过凸轮板修正线性的指示流量。 B、采用新型的ESK型信号变送器,可兼有HART协 议通讯功能。 C、可在就地流量指示型仪表内选择安装:
◇ 带(4~20)mA线性输出的5W1角位移信号变送器;
◇ 带(4~20)mA非线性输出无滞后的ESK型信号变送器;
◇ 上、下限报警开关。 |
|
◆ M9指示器 A、在指示器中采用一对耦合磁钢完成流量指示和电信号转换。 B、采用新型的ESK型信号变送器,可兼有HART协议通讯功能。 C、可在就地流量指示型仪表内选择安装:
◇ 带(4~20)mA非线性输出并无滞后的ESK型信号变送器;
◇ 上、下限报警开关。 |
|
产品选型编码 |

|

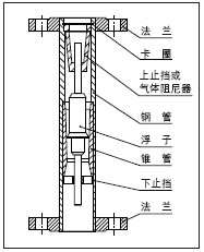
第三代金属转子流量计概述
第三代金属管浮子流量计是由
成丰仪表研发生产制造,它进一步提高了金属管浮子流量计的可用性和优势性,它具有以下特点:一次成型 内外锥管一体式,坚固简洁测量管无死角,浮子可转动不易堵塞,磁性元件不受地磁场影响。低压力损失设计,模块化、智能化、卡件式指示器。新型ESK变送器 与国际市场同步!引进国外计算软件保证计算精确。介质、粘度、密度、温度、压力多级修正。
特点
第三代金属管浮子流量计是引进国外计算系统,协同专利技术研发生产的克罗尼结构金属管浮子流量计。相比传统的流量计:具有精度高、重复性好、服务量小等优势,由一个测量管和一个就地指示器组成。
无死角测量 低压损失
主测管采用一次成型内外锥管式,全金属结构,短行程,小型结构设计,坚固、稳定、简洁,无死角测量。测量部件由一个锥形测量管和浮子组成,浮子能在锥形测量管中自由的上下移动,低压力损失设计,浮子转动不易堵塞,磁性元件不受地磁场影响。
模块智能化 抗热耐压
就地指示器模块化、智能化、卡件式设计,对介质的粘度、密度、温度、压力多级修正标定,适用于各行业的气体和液体测量,测量部分可采用不同的材质来适应不同的介质条件,即使是恶劣环境和腐蚀严重的介质,也具有良好的抗热性和耐压性。指示器还可以选择安装附加的电气部件。指示器采用新型磁耦合结构设计确保传输信号更加稳定。根据用户要求可以加装磁过滤器。
引先进技术 计算精
与国际市场同步新型的ESK 变送器,可兼有HART协议通讯功能。
智能型双行液晶显示,可选现场瞬时/累计流量显示,可带背光。可选二线制、电池、交流供电方式。引进国外计算软件保证计算精确,并带有数据恢复、数据备份及掉电保护功能。